Les 6, 7, 8 mars 2025, Les Inaccoutumés Printemps de La Ménagerie de Verre ouvrait avec Cruel Trop Tard, un projet de Tsirihaka Harrivel. Il est jusqu’à demain 4 avril au CENTQUATRE-PARIS dans le cadre du Festival Séquence Danse Paris. À l’époque de sa création, il avait demandé une petite refonte de l’architecture de l’espace du garage qui oscillait alors entre l’artifice d’un white cube plus blanc que jamais, et la scénographie d’un décor de cinéma où châssis et faux poteaux décadraient nos champs de vision. C’est cette histoire que Tsirihaka Harrivel, François Boulet et Alice Panziera nous ont confiée mais c’est aussi une autre : celle qui mène à la réflexion plus globale que la conduite d’un projet in situ qui voyage en 2026. Comment mettre en scène ailleurs cette idée pourtant simple, qui vise à transformer l’acte de tirer une flèche ?

Photo © Makoto C. Ôkubo
Entretien réalisé à trois voix, avec François Boulet, Tsirihaka Harrivel et Alice Panziera, le 16 mars 2026
Créer le cadre d’une fiction face au danger de l’action
Pouvons-nous perdre la raison et le sens du danger lorsque nous entrons dans une salle de spectacle ? C’est l’enseignement surprise que raconte François Boulet, régisseur général après l’expérience de Cruel Trop Tard à la Ménagerie de Verre : “Bien qu’averti de toute la menace que constitue une flèche qui fuse à près de 250km/h, celle-ci s’évapore complètement sous prétexte qu’être au théâtre, c’est être dans un espace sécurisé”. Il faut dire aussi que l’exploitation de cet ancien garage de 30 m de long, étroit sous ses IPN laissant seulement un peu plus de 2 m de hauteur sous plafond, se prêtait bien à la mise en scène de dangers imminents. Inspiré du Kyūdo (tir à l’arc d’origine japonaise, pratiqué avec un arc asymétrique et des flèches en bambou), Tsirihaka Harrivel et ses complices, François Boulet et Alice Panziera, ont transformé cette salle de la Ménagerie de Verre en champ de tir bien réel. Si la forme d’inconscience collective que François décrit face au danger d’une flèche n’avait pas été soupçonné, Alice rappelle que la menace n’a pas quitté le moment de création : “Le dispositif est en soit très réel ; la pratique du tir à l’arc l’est aussi, et il a fallu créer des couches de fiction face au fait qu’il y a un humain qui soit en face d’un autre, prêt à tirer avec une vraie flèche”. Installé de part et d’autre du champ de tir, le public observe donc d’un côté une archère envoyant ses flèches, et de l’autre, sa cible en forme de cœur qu’un vaporeux personnage traverse. Entre les deux, c’est le néant invisible de la vitesse et le doux sifflement d’une menace de mort imminente. Il est physiquement impossible de suivre le départ de la flèche, son voyage, avant l’atterrissage dans sa cible. À la première flèche lancée, toute l’assemblée retient son souffle et s’ancre désormais dans le monde bien saisissant du fracas de la flèche dans sa cible.

Photo © Makoto C. Ôkubo
Des contraintes du réel à la fabrique de la scène
L’intégration “du réel de la flèche dans le réel de la Ménagerie, qui est censé être une scène et donc un espace de fiction” connaît ainsi plusieurs étapes confie Alice. Une fois le bi-frontal installé, formalisant l’espace du champ de tir, l’équipe renforce le blanc des murs de la pièce en repeignant l’ensemble aussi en blanc. Plutôt que d’extraire des lieux la représentation, la dynamique artificielle de l’espace est réaffirmée. Tsirihaka rappelle d’ailleurs que se fondre dans la Ménagerie n’est finalement qu’une idée empruntée à la Ménagerie elle-même : “Certains éléments techniques comme les enceintes ont été à un moment dans son histoire repeints en blanc à la demande de Marie-Thérèse Allier”, sa fondatrice. Comprendre la force d’un champ de tir, c’est aussi mettre en place les points de sécurité nécessaires quant à l’installation d’une ciblerie. Si celle-ci nécessite une structure renforcée l’entourant afin qu’il n’y ait aucun risque que la flèche transperce ou rebondisse, les trois compères saisissent alors cette occasion et redéfissent l’architecture même du garage.

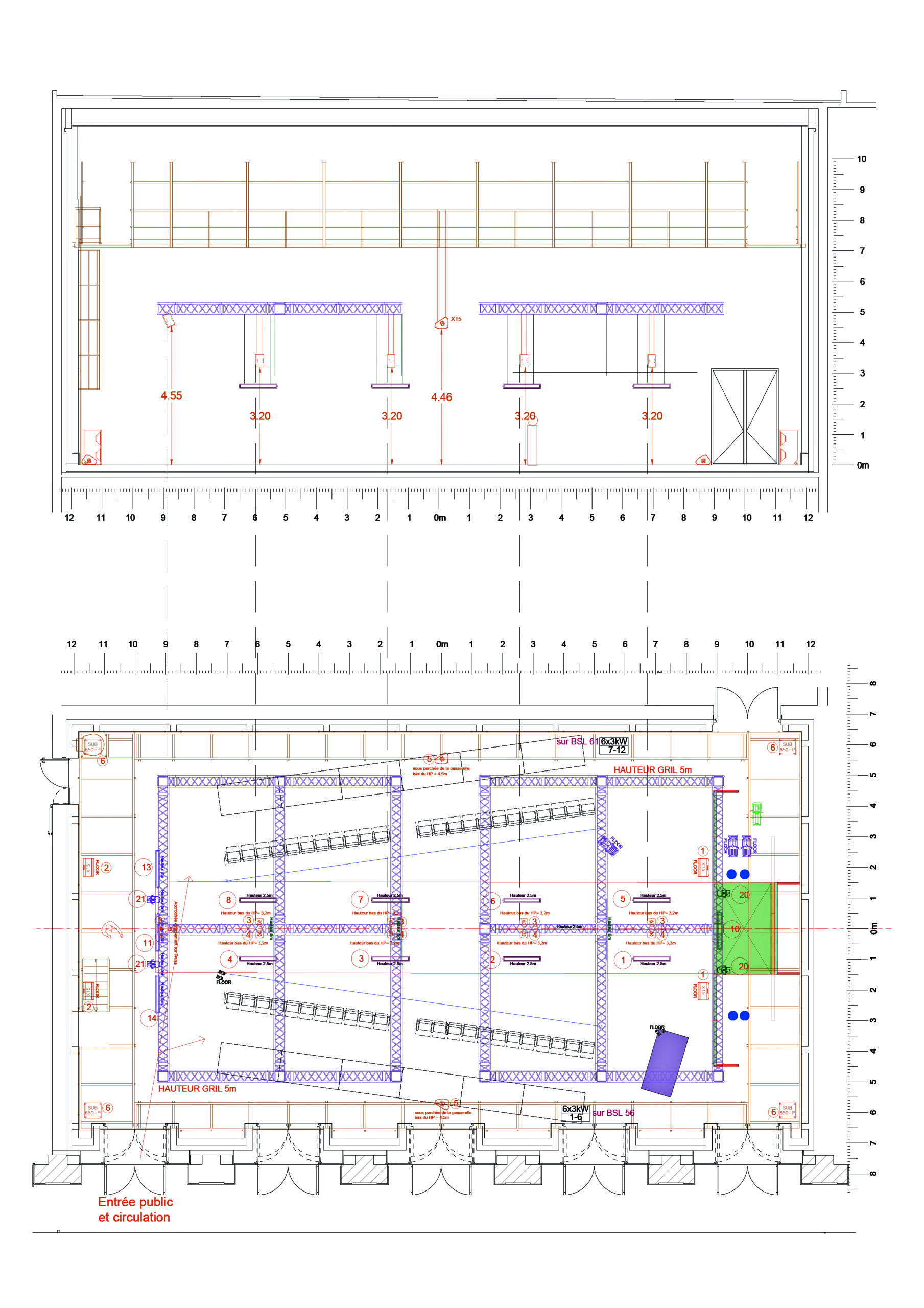
Plan feu à La Ménagerie de Verre – Document © François Boulet
De nouveaux murs aussi blancs que le reste sont construits et réduisent le garage de près de 6 m. Ils profitent aussi de la présence d’un poteau structurel de la pièce pour en faire trois nouveaux symétriques à celui-là, et signifient à l’aide d’une guinde tendue le périmètre du champ de tir infranchissable une fois le spectacle débuté. Tout cela sans que personne n’y prête vraiment attention, c’est la magie de l’artifice face au temps de la représentation bien réelle. Alice, créatrice lumière, résume avec ses propres principes lumières l’approche du projet : “Le départ de la création lumière est les contraintes de sécurité, à qui on trouve des solutions plastiques. Il était évident de ne pas éblouir l’archère. Alors nous avons identifié deux zones, la sienne et la ciblerie ; après, l’ensemble visible de l’espace peut être réduit ou augmenté comme un accordéon en fonction de comment la lumière sépare ou au contraire réunie les deux zones avec son centre”.

Plan feu au CENTQUATRE-PARIS – Document © François Boulet
L’adaptation d’un dispositif nécessaire
Après les représentations à la Ménagerie de Verre, Cruel Trop Tard se repose près d’une année. Il revient aujourd’hui du 1er au 4 avril au CENTQUATRE-PARIS. Il sera présenté dans le cadre de la Nuit de la performance en Suisse le 24 juillet 2027, au Musée d’art et d’histoire de Genève en collaboration avec La Comédie de Genève. Deux périodes de diffusion avec des contraintes différentes : l’Atelier 4 du CENTQUATRE offre une boîte noire, un espace assez technique, tandis que Musée d’art et d’histoire de Genève propose l’une de ses salles les plus emblématiques,(1) à l’étage des Beaux-Arts. François glisse alors : “Dans les deux espaces, nous n’emmènerons pas les mêmes choses, mais ce qui voyage obligatoirement, ce sont les contraintes de sécurité”.

Photo © Makoto C. Ôkubo
À l’heure où nous parlions, les choix n’avaient pas encore été actés en vue des représentations au CENTQUATRE et il faudra s’y rendre afin d’apprécier les capacités d’adaptation du projet. Tsirihaka confie tout de même que “la construction de châssis entourant la ciblerie était devenue nécessaire, et l’achat de filets de Kyūdo, qui sont souples et permettent de couper la dynamique de la flèche, renforceront l’esthétique du champ de tir”. Une machinerie plus à vue donc dorénavant, et une installation lumière garante de l’espace de tirs au Musée d’art et d’histoire de Genève dans la mesure où la salle ne possède pas d’accroches : des rampes seront posées au sol et formaliseront le champ de tir devant les deux espaces dédiés au public. Si le CENTQUATRE laisse deux jours de montage ainsi que deux jours de répétitions à la petite équipe, Tsirihaka rappelle que “l’intégration du spectacle se fait différemment d’un lieu à l’autre, et c’est à nous de réfléchir à notre dispositif dans un lieu qui, de toute façon, nous impose son propre rythme”.
(1). Il s’agit de la salle où est présenté le tableau La Pêche miraculeuse de Konrad Witz (1444) qui représente une scène biblique dans un paysage réel réaliste à l’époque médiévale, faisant de celui-ci le premier tableau, dans l’histoire de l’art, où un lieu connu, en l’occurence le Lac Léman, est reconnaissable





